××工程地下室底板、側墻防水施工方案
××工程地下室底板、側墻防水施工方案
1.工程概況
(1)本工程地下室底板及側墻防水層的設計達到一級防水等級,不允許滲水。防水層合理使用年限達25年以上。
(2)柔性外防水層采用防水涂料同高分子防水卷材組成的復合防水層。先滿粘鋪貼高分子復合防水卷材一道,再進行鄭州賽諾建材宇巖牌防水涂料施工。可在潮濕基層上直接冷施工,無毒、無味、無火險、無污染,無燙傷和中毒等事故隱患,施工安全可靠。
(3)鋪貼高分子復合防水卷材時,長邊搭接寬度為100mm,短邊搭接寬度為150mm?;鶎犹厥獠课蝗绻芸?、陰角等處先增貼一道卷材附加層。所有卷材搭接口、管口及收頭部位均進行封邊封口處理。防水涂料的涂刷厚度為1.5mm,詳見圖1~圖3。
2.選用材料
(1)高分子復合防水卷材。
(2)卷材粘接劑。聚合物乳液∶水泥 = 20∶100,用量為4.0㎏/m2。
(3)鄭州賽諾建材有限公司生產的宇巖牌聚合物改性水泥基防水涂料技術數據見表2。
表2 聚合物改性水泥基防水涂料技術數據
| 項目 | 數據 |
| 顏色 | 灰色 |
| 形態 | A組份:液體 |
| B組份:粉料 | |
| 密度 | A+B(混合后)=1.3~1.4kg/L(混合比例2A︰3B) |
| 現場活性 | 20℃時30min,但隨溫度升高可施工時間會縮短 |
| 與混凝土粘接強度 | ≥1.5MPa |
| 儲存條件 | 陰涼干燥處保存 |
| 包裝 |
A組份:10kg |
| B組份:15kg | |
| 拉伸強度 | ≥1.2 MPa |
| 斷裂伸長率 | ≥200% |
3.施工準備
(1)組織相關人員熟悉工程情況,進行技術交底,材料進場并報驗。
(2)組織現場管理,提交營業執照、資質證書、承接工程核準證、安全許可證、操作人員上崗證、材料推廣證、材料合格證、材料復測報告等資料。工程人員組織如下:
項目負責人:
技術負責人:
施工人員 :6名
(3)使用器具表見表3。
表3 使用器具一覽表
| 器具名稱 | 備注 | 器具名稱 | 備注 |
| 清掃工具 | 掃帚、平頭鐵锨 | 刮板 | |
| 搬運工具 | 繩子、手推車 | 抹子 | |
| 丈量工具 | 鋼卷尺 | 剪刀 | |
| 攪拌容器 | 大桶1個 | 羊毛滾筒 | |
| 攪拌器具 | 手提攪拌機 | 油漆刷 | |
| 手提桶 | 5kg規格 | 勞保橡膠手套 | 視施工人員需要決定 |
4.施工工序
(1)工藝流程?;鶎訖z查、驗收、清理、濕潤→節點部位粘貼卷材附加層→大面鋪貼防水卷材→封邊封口處理→節點部位涂刷防水涂料→大面涂刷1遍宇巖牌防水涂料→再大面涂刷1遍宇巖牌防水涂料→再大面涂刷1遍宇巖牌防水涂料→清理、養護、檢查、驗收。
(2)施工工序。
1)基層驗收。清理干凈,使基層滿足防水施工要求。
2)節點部位(管口、基層轉角等)粘貼高分子復合防水卷材附加層。
3)大面滿粘鋪貼高分子復合防水卷材,搭接寬度滿足設計要求。
4)卷材搭接口及收頭等部位進行封邊封口處理。
5)節點部位涂刷宇巖牌防水涂料。
6)大面涂刷宇巖牌防水涂料。
7)間隔4h以上,再大面涂刷一遍充分攪勻的宇巖牌防水涂料。
8)間隔4h以上,再大面涂刷一遍充分攪勻的宇巖牌防水涂料。
9)防水層清掃,自檢,驗收,退場。
5.施工方法
(1)施工準備。
1)采用井點降水降下地下水位,做好排水處理,使地下水位降至防水層底標高300~500mm以下,并保持到地下室施工完。
2)鋪貼防水層的基層表面應平整光滑,必須將基層上的雜物清除干凈,基層不得有空鼓、起砂脫皮現象,基層應保持基本干燥,陰陽角做成圓弧型。
3)防水層所用的材料多屬易燃品,存放和操作應遠離火源,做好防火工作。
(2)鋪貼防水層。
1)本工程防水卷材采用冷粘貼施工法,鋪貼前在基層面上排尺彈線,作為掌握鋪貼的標準線,使其鋪貼平直。同時要求在鋪貼好的卷材上彈出搭接寬度線,以便第二幅卷材鋪貼時作為準線。
2)卷材粘貼面節點處理。在清理干凈的基層面上必須先對陰陽角、平立面轉角處、卷材接頭處進行附加增強層的施工。
3)卷材粘貼。采用抬鋪法或滾鋪法,將卷材用ф30mm,長1.5m圓心棒卷好,由兩人抬至鋪設端頭,注意用線控制,位置要正確,粘結固定端頭,然后沿彈好的標準線鋪設,操作時卷材不要拉太緊,并注意方向,沿標準線進行,以保證卷材搭接寬度。推滾卷材進行鋪貼并施行排氣壓實。鋪貼立面卷材時,上層卷材蓋過下層卷材應不小于150mm。施工時必須注意:
①卷材不得在陰陽角處接頭,接頭處應間隙錯開。
②操作中排氣。每鋪好一張卷材,應立即用干凈的滾刷從卷材的一端開始,用力滾壓一遍,以便將空氣排出。
③滾壓。排除空氣后,為使卷材粘結牢固,應用外包橡皮的鐵輥滾壓一遍。
④接頭處理。卷材搭接的長邊與端頭的短邊其搭接寬度不應小于100mm。
⑤收頭處理。卷材與混凝土墊層粘接牢固、封閉嚴密。
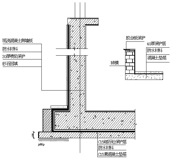
6)地下室底板邊側收尾在完成底板防水層施工時必須預留30cm防水卷材,見圖4所示,地梁底施工節點見圖5所示。

圖4 地下室底板施工節點處理示意圖
外防內貼法底板平面部位的卷材施工方法與地下室外防外貼法相同。而立面部位先按設計要求的高度完成永久性保護墻的砌筑,墻面用1︰2水泥砂漿抹平,卷材在底板平面上連續鋪貼至永久性保護墻上,并將甩茬卷材臨時鋪在臨時性磚模墻體上。
7)涂膜防水層施工應先上后下,先高后低,先遠后近,先節點及附加層后大面積涂布。涂料和卷材同時使用時,卷材和涂膜的接縫應順水方向,搭接寬度不得小于100mm。
8)涂膜防水層施工時必須嚴格控制每遍的涂刷厚度,必須根據設計要求的每m2涂料用量、涂膜厚度及涂料材性事先試驗確定。涂料混合應充分,攪拌的混合料均勻一致為標準,每次配料不宜過多,不得使用超過攪拌規定時間的材料。每遍涂刷后必須待底層干透后方可實施上層。
(3)施工保護層。防水層做完后,底板應按設計要求底板做40mm厚C15細石混凝土保護層,墻板噴水泥砂漿保護層。保護層施工時必須加強對已完成的防水層的保護,嚴禁施工機械直接在防水層上移動,底板保護層澆筑時盡可能采用塔吊施工,或采用鋪設膠合板跑道的方法進行施工。
6.質量控制要點
(1)卷材與膠結材料必須符合設計和施工及驗收規范的規定。及時檢查產品出廠合格證、試驗資料的技術性能指標,現場取樣試驗。
(2)卷材表面滾鋪時,排除卷材下面的空氣并輥壓粘貼牢固,不得有空鼓、皺折。滾鋪時接縫部位必須溢出膠結材料,并應隨即刮封接口使接縫粘貼嚴密。
(3)鋪貼后的卷材應平整、順直、搭接尺寸正確,不得有扭曲。轉角部位要加強。
(4)細部節點做樣板后,請質檢員及監理檢查后,再進行施工。
(5)涂膜層應涂刷均勻一致,與基層粘接牢固,表面平整,無流淌、皺折、鼓泡、露底,平均厚度應符合設計要求,最小厚度不得小于設計厚度的80%。
7.安全要求
(1)進入施工現場人員必須戴好安全帽,穿軟底鞋。遵守工地規章制度。
(2)防水施工溫度宜在0℃以上、25℃以下進行。防水層施工后24h內嚴禁上人行走或進行其他作業。
(3)卷材、涂料在地下室基坑內施工要注意通風和風向,大部分材料為易燃有毒,必須采取必要的防火、防毒、防墜落措施。
(4)施工前應對施工人員進行安全技術交底,施工操作過程符合安全技術規定。
(5)運輸材料時,運輸設施要牢固可靠,對周邊環境必須了解清楚,特別是坑、洞等。
當前在地下工程的混凝土,磚結構構筑物,回填后,經常會因各種原因發生滲漏,處理方法也多種多樣,但對于混凝土的毛細孔或微細裂紋的滲水和出汗問題,一直是個工程難題,于是就有了“不怕漏,就怕滲的”說法。尤其是遇到磚結構滲水,更是難以耐久性解決。
建筑物回填后,發生了滲漏,嚴重的可以用注漿或速凝堵漏材料進行堵漏,但如果遇到滲水和出汗的問題,注漿和速凝的堵漏材料的優勢就受到了限制。市場急需要一種能適合內部施工的,方法簡單的,耐久性好的技術來解決目前工程上遇到的難題。
鄭州賽諾建材,專業工程水密封技術
電話:400-0371-713.m.zdweidun.com.cn








