青島某超高層綜合樓地下室防水方案
青島某超高層綜合樓地下室防水方案
1.工程概況
青島某科技大廈暨某國際大廈工程位于青島市市南區某路某號,地下三層,主要功能為人防、停車及商業用房。本工程地下建筑面積約18170m2,設計標高±0.000相當于黃海高程6.8m。
本工程所處水位高且水量較大,工程設計采用混凝土自防水和外卷材防水兩道設防,其中外防水采用外防外貼SBS高聚物改性瀝青防水卷材(燈塔牌)作為防水材料,防水范圍為底板、東北區地下室頂板、混凝土結構側墻外圍,總防水面積約為15000 m2。
2.方案選擇
根據工程的基層情況,SBS防水卷材總體施工方案確定為底板采用滿粘滾鋪法,鋪貼方向為東西向,側墻采用自下而上滿粘法鋪貼,頂板采用滿粘滾鋪法鋪貼。
3.材料及機具
材料:本工程采用“燈塔”牌高聚物改性瀝青SBS防水卷材,其規格為厚度4mm。
機具:噴燈10把,噴槍5把、隔熱板5塊、滾刷、刮刀、毛刷、剪刀若干。
4.施工準備
(1)SBS卷材的生產及運輸。項目部協同建設單位及監理單位對SBS卷材的生產及運輸進行全程監督,從生產源頭即開始嚴格控制SBS卷材本身的質量。
(2)SBS卷材的存放。妥善保管好卷材,SBS卷材進場后平放在干燥、通風、平整的場地上或室內,遠離明火,避免日曬和雨淋。
(3)材料復查。防水材料進入現場后根據相關規定及時請質量監督站相關人員現場抽樣進行復查,材料復查合格后方可施工。
(4)基層要求。
1)基層表面應壓實平整,不得有酥松、起皮、起砂等混凝土缺陷。
2)與基層相連的磚胎模、坑槽、管道等陰陽角作成平整光滑、均勻一致的圓弧,半徑R不小于30mm。
3)滿沾法基層含水率不得超過9%,其簡單檢測方法是在施工前用1m2卷材平鋪于找平層上,2~3h后揭起,若基層表面無水印,卷材表面無明顯結露即可施工。
4)清除基層表面突出的異物、砂漿等,用高壓空氣將塵土、雜物清除干凈,陰陽角、管道及抗浮錨桿根部等處必須仔細清理,確保基層表面清潔干凈。清理完成須報驗合格后方可進行防水卷材施工。
5)穿出防水層的管道必須在防水工程開工前安裝完畢,并預留出30cm管頭,以便于防水施工。
5、樣板領路制。防水工程開始施工前先做樣板鋪貼,經建設單位及監理單位共同驗收同意后再進行大面積鋪貼。
5.施工工藝
(1)工藝流程。
底板:采用東西向滿粘滾鋪法。
側墻:自下而上滿粘法鋪貼。
頂板:采用滿粘法鋪貼。
底板施工順序:基層清理→放線→抗浮錨桿根部水泥基防水處理→陰陽角及抗浮錨桿根部處鋪貼SBS卷材附加層→大面鋪貼4mm厚SBS卷材(包括磚胎模立面)→油氈隔離層→70mm厚C20細石混凝土保護層→底板鋼筋綁扎→底板混凝土澆筑;
側墻施工順序:基層清理→抹20mm厚普通防水砂漿→放線→穿墻套管處理及陰陽角處鋪貼SBS卷材附加層→下部卷材與底板甩槎粘接→自下而上粘每幅卷材→清理甩槎卷材→密封收口→120mm厚機制磚保護層→基坑回填土;
頂板施工順序:基層清理→抹20mm厚普通防水砂漿→放線→穿頂板套管處理及陰陽角處鋪貼SBS卷材附加層→頂板鋪貼4mm厚SBS卷材并與立墻處鋪貼的4mm厚SBS卷材端部粘接→70mm厚C20細石混凝土保護層。
(2)施工方法。
1)在處理好的基層上噴刷基層處理劑,用噴槍及長柄滾刷將基層處理劑噴刷在基層表面。涂刷要均勻,不得漏刷或露底。基層處理劑涂刷完畢必須經過8h以上達到干燥程度方可進行熱熔法施工,以避免失火。
2)施工前在已處理好并干燥的基層表面按照所選卷材的寬度留出搭接縫尺寸,將鋪貼卷材的基準線彈好,按此基準線進行卷材鋪貼施工。放線時應注意盡量減少接頭,接頭部位要相互錯開,上下兩層。防水層的搭接逢也需錯開,鋪貼時應將卷材沿順放好的線拉直、鋪平。
3)大面積鋪貼采用滿粘“滾鋪法”,先鋪貼大面,后粘結搭接縫。該方法可保證卷材鋪貼質量,利于卷材與基層及卷材搭接縫一次熔鋪。
4)起始端熔粘卷材時,先將整卷卷材置于鋪貼起始端,對準基層上已彈好的基準線,滾展卷材約1m,由1人站在卷材正面將這1m卷材拉起,另1人站在卷材底面(有熱熔膠面)手持噴燈使火焰對準卷材與基面交界處同時加熱卷材底面與基層面,待卷材底面膠呈熔融狀即進行粘鋪,再由1人以手持壓輥對鋪貼的卷材進行排氣壓實。鋪到卷材端頭剩下約300mm時,將卷材端頭翻放在隔熱板上再進行熔烤,最后將端頭卷材鋪牢壓實。
5)卷材鋪貼搭接上層卷材蓋過下層卷材不小于100mm。立面與平面的轉角處,卷材的搭接應留在平面上且距離立面不小于600mm。卷材搭接縫以及卷材收頭的鋪粘是影響鋪貼質量的關鍵之一,不隨大面一次粘鋪,而作專門處理。搭接縫及收頭的卷材必須100%烘烤,粘鋪時必須有熔融瀝青從邊端擠出,用刮刀將擠出的熱熔膠刮平,沿邊端封嚴。具體方法為
①為使搭接縫粘結牢固,先將下層卷材(已鋪好)表面的砂清除并將防粘隔離層溶掉。為防止烘烤到搭接縫以外的卷材,用燙板沿搭接彈線移動,噴燈隨燙板移動,通過燙板的擋火作用使噴燈火焰只將搭接卷材的隔離層溶掉而不影響其他部位卷材。
②粘貼搭接縫時,一手用刮刀將搭接縫卷材掀起,另一手持噴燈從搭接縫外向里噴火烘烤卷材面,隨烘烤熔融隨粘貼,并將熔融的瀝青擠出,用刮刀刮平。搭接縫或收頭粘貼后,用火焰及刮刀沿搭接縫邊沿在行均勻加熱抹壓封嚴,寬度不小于10mm。
6)考慮到本工程間后澆帶澆筑間隔時間較長,后澆帶考慮增設附加層并在保護層混凝土內增設加強鋼筋(節點見圖1、2)。

圖1 后澆帶節點示意(單位:mm)

圖2 后澆帶轉模節點示意(單位:mm)
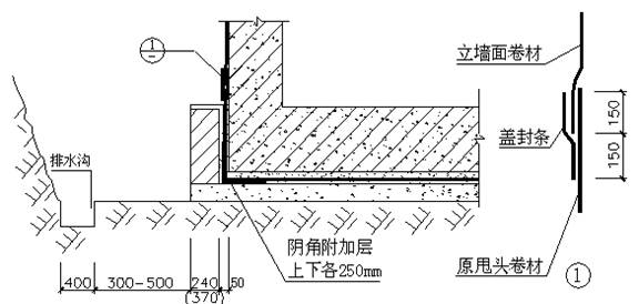
7)細部及陰陽角部位滿粘(基礎底板、電梯井坑、集水坑、頂板轉角、管道及抗浮錨桿根部等)并鋪貼SBS附加層,附加層總寬度為500mm,以陰陽角對分(節點見圖3、4)。先按細部形狀將卷材剪好,不要加熱,再細部貼一下,視尺寸、形狀合適后,再將卷材的底面(有熱熔膠的一面)用噴燈烘烤,待其底面呈熔融狀態,即可立即粘貼在已涂刷密封材料的基層上,并壓實鋪牢。

圖3 三角陰面附加卷材鋪貼示意(單位:mm)
圖4 陰陽轉角附加卷材鋪貼示意(單位:mm)
8)對于穿過混凝土墻板的預留套管收口部位用鋁壓條固定,電鉆鉆孔,其間距約為25cm,用螺絲刀上緊子攻絲,不得有松動現象,上面用密封膠密封(節點見圖5)。對于不穿出混凝土墻板的預留套管收口部位待SBS防水卷材鋪貼此部位時采用聚氨酯等密封材料密封收口(節點見圖6)。

圖5 穿墻板管件防水構造示意(單位:mm)

圖6 不外伸穿墻板管件防水構造示意(單位:mm)
9)突出的管道采用卷材包覆,末端粘實并用鋁壓條固定密封膠收口。抗浮錨桿根部處理詳見補充方案。
10)底板周邊采用M5.0 水泥砂漿砌筑MU10機制青磚磚模,700mm、1000m厚底板的磚模寬度為240mm,2000mm厚底板的磚模寬度為370mm,高度為底板厚度+120mm。磚模轉角處及在通長方向上每3m設磚垛,1000mm厚底板磚模設370mm磚垛,2000mm厚底板磚模設490磚垛。磚模內側距設計地下室外墻外表面50mm,以便于磚模內側抹灰找平及貼完SBS卷材后抹灰保護。磚胎模頂及內側采用水泥砂漿找平,SBS卷材鋪貼至磚模頂后甩出300mm的預留端已備同外墻SBS卷材搭接。防水卷材預留端干鋪在磚模頂,上覆蓋一層塑料薄膜,再砌一皮青磚做第二層保護層(節點見圖7)。

圖7 底板周邊構造示意(單位:mm)
11)磚胎模內側SBS卷材粘貼完畢后抹水泥砂漿保護。墻體混凝土施工完畢后將防水卷材甩頭展平清凈與墻體卷材搭接(節點見圖8)。

圖8 SBS甩頭與墻體卷材搭接示意
12)立墻卷材由下向上鋪貼,采用滿粘法。從底面轉到立面鋪貼的卷材恰好為有熱熔膠的底面背對立墻基面,因此,這部分卷材應使用氯丁橡膠改性瀝青膠粘劑以冷粘法粘貼在立墻面上。繼續向上鋪貼的熱熔卷材仍用熱熔法鋪貼。立墻面卷材鋪貼借助腳手架進行,操作時應精心仔細將卷材粘貼牢固,以避免立面卷材產生滑墜。立墻防水完成經驗收合格后,基坑回填前在卷材防水層外側用M5.0砂漿砌筑120mm厚磚保護墻,砌筑保護墻的同時在防水層的一側灌1︰2.5水泥砂漿以防破壞防水層。
13)頂板防水施工同底板,采用滿粘滾鋪法。
14)集水坑底處根據地下滲水情況設置預埋φ14@80焊接鋼筋籠匯水,鋼筋籠外側用鋼絲網包裹,內填4~6cm的石子,籠中焊埋設有單向順水閥門的鋼管與地上的自吸式水泵相同,在澆筑坑底底板混凝土以前自吸式水泵不停的抽水,防止地下水將坑底的墊層及防水層沖破,待坑底底板的混凝土澆筑到一定深度時將單向閥門關閉,然后將閥門以上的鋼管割除,再將坑底的底板混凝土澆筑到設計高度(節點圖見圖9)。

圖9 集水井坑底排水構造示意(單位:mm)
6.質量保證措施
(1)施工時必須嚴格按照國標GB50208-2002《地下防水工程質量及驗收規范》施工。
(2)防水層的施工應在上道工序完畢后進行,不得交叉施工。
(3)鋪貼卷材時施工環境溫度在-10℃以下,雨、雪、6級以上大風天氣不能鋪貼卷材。
(4)施工時要注意保護,及時清理現場施工廢棄物,并妥善保管。每日施工結束前應將卷材臨時固定,以免被風吹起。
(5)施工現場嚴禁煙火,施工人員進入現場不得穿底帶金屬的鞋,盡量穿布鞋,以防扎破卷材。
(6)施工過程中嚴格檢測。
目測:看是否有漏粘現象;
手工檢測:用平口螺釘旋具或用探針沿粘縫稍微用力挑試,檢查有無漏粘和虛粘現象。實行“三檢制度”。
(7)現場注意成品保護,不得在防水層上穿眼打洞,一旦有損壞,立即通知防水施工人員。防水工程施工完畢驗收合格后應立即做保護層,并采取有效的臨時保護措施,即閑雜人員不得進入施工現場,做保護層施工時應使用木制工具,手推車支撐腿應用橡膠包裹,做保護層及鋼筋綁扎時防水施工人員隨時巡查、修護。
7.工程驗收。
(1)工程所用的材料應符合質量標準和設計要求,并具有備案證、檢測報告及復試合格證。
(2)在大面積施工前,先在基坑東南角作出樣板,待監理及建設單位確定后方可大面積施工。
(3)各層卷材之間、卷材與基層之間應粘接牢固,外觀表面平整,不允許有皺褶、滑移、翹邊等問題存在。節點做法應符合方案要求,封固嚴密,不得開縫翹邊。
(4)施工作業實行“合格轉序,下道工序驗證”原則,工程完工后由監理單位、建設單位及施工單位進行共同驗收,檢查合格后辦理隱蔽工程驗收記錄。
8.安全措施
(1)施工人員必須嚴格遵守安全施工的有關規定,服從現場的指揮和調配。
(2)施工人員進入工地前按勞動防護規定佩帶好勞動防護用品,否則不得上崗。
(3)嚴禁隨意挪動工地上的消防工具及安全器材,工地上如發現易燃物品立即向項目部匯報。
(4)一切電器設備的金屬外殼須按規定采用可靠的接地方式。
(5)施工人員在現場不得酒后施工,不得打架斗毆。
(6)施工所用材料大多屬于易燃物質,應嚴格存放保管,材料房及施工現場嚴禁煙火。
(7)交叉作業時注意各工種不得動用明火,防止引燃膠粘劑及卷材。
(8)熱熔施工在點火以及烘烤施工中,火焰噴嘴嚴禁對著人。
(9)噴燈以及易燃品等,下班后必須放入有人管理的指定倉庫中。
9.編制依據
(1)GB50208-2002《地下防水工程質量及驗收規范》;
(2)GB50108-2001《地下工程防水技術規范》;
(3)《建筑施工手冊》;
(4)工程結構(施工圖)、現場實際情況。
當前在地下工程的混凝土,磚結構構筑物,回填后,經常會因各種原因發生滲漏,處理方法也多種多樣,但對于混凝土的毛細孔或微細裂紋的滲水和出汗問題,一直是個工程難題,于是就有了“不怕漏,就怕滲的”說法。尤其是遇到磚結構滲水,更是難以耐久性解決。
建筑物回填后,發生了滲漏,嚴重的可以用注漿或速凝堵漏材料進行堵漏,但如果遇到滲水和出汗的問題,注漿和速凝的堵漏材料的優勢就受到了限制。市場急需要一種能適合內部施工的,方法簡單的,耐久性好的技術來解決目前工程上遇到的難題。
鄭州賽諾建材,專業工程水密封技術20年,電話:400-0371-713.m.zdweidun.com.cn








