某大廈地下防水工程施工方案
某大廈地下防水工程施工方案
1.編制依據
(1)××大廈工程施工圖。
(2)××大廈工程施工組織設計。
(3)GB 50108-2008《地下工程防水技術規范》。
(4)GB 50204-2002《混凝土結構工程施工質量驗收規范》。
(5)GB 50208-2002《地下工程防水質量驗收規范》。
(6)GB 8076-2008《混凝土外加劑》。
(7)GB/T 14902-2003《預拌混凝土》。
(8)JGJ/T 10-95《混凝土泵送施工技術規程》。
2.工程概況
(1)現場概況
××大廈工程位于××西街,總建筑面積85040m2,其中地下29000m2,基底標高-20.26m。基礎埋置深度深,地下水位高,其層間潛水為29.86~22.91m(相當于埋深9.59~17.54m),高于基礎底板。根據本工程的特點及設計要求,基礎底板及外墻立面柔性防水均采用3mm+3mm厚SBSⅡ型PY-PE3卷材防水,所有低于-0.60m標高的地下室頂板(指±0.000以下縮回部分的地下頂板)均做3mm+3mm厚SBSⅡ型PY-PE3卷材防水。本工程地下室防水采用外防外貼式防水。
混凝土剛性防水方面底板抗滲等級為S12,地下三層、四層外墻及消防水池抗滲等級為S12,地下一層、二層外墻抗滲等級S10,地下四層人防頂板抗滲等級為S6。地下二層1~5軸/A~K軸頂板抗滲等級S10。
(2)防水材料概況
本工程選用SBSⅡ型PY-PE3,此防水卷材有以下幾個特點:
1)抗滲性好。本工程選用的3mm+3mm厚SBSⅡ型PY-PE3卷材防水,搭接接縫用熱熔法施工,兩層卷材熔合在一起,材厚達6mm,在施工過程中即使發生輕微的扎、軋創傷,也可以完全通過自身的特性自愈。接縫寬度為100mm,即使受到拉伸,也不會在接縫處斷開,其抗滲壓力>0.3MPa(保持30min不透水)。
2)采用熱熔法施工,不采用膠粘劑,施工質量有保障;
3)卷材采用聚酯胎,有很高的強度及耐腐蝕性;
4)SBS防水卷材采用熱融法施工,可以在-25℃以上的氣候下進行操作,能夠滿足冬季施工的要求。
(3)剛性防水概況
本工程筏板基礎、地下室外墻、水池、人防頂板等部位混凝土均有抗滲要求,故混凝土中需摻加混凝土防水劑。
3.施工安排
(1)施工配合。
1)在地下室底板防水施工過程中,若進行夜間作業,由總包提供夜間照明。
2)在進行外立面施工時,由總包提供并搭設作業腳手架。
3)側墻防水施工前,與基礎底板處臨時保護墻搭接處的處理由總包負責將臨時保護墻拆除,并將卷材收頭按要求清理出來。
4)土建施工隊及設備專業施工時應注意對已完防水層的成品保護。
(2)勞動力計劃。
1)現場管理機構的建立。在總包的統一協調管理下由××防腐防水工程有限公司成立××大廈防水項目經理部,具體組織如下:
①總包管理人員安排見表1。
表1 總包管理人員安排
| 序號 | 分工管理內容 | 負責人 | 主要管理內容 |
| 1 | 生產組織協調 | ×× | 負責人力、物力等協調配合,保證施工連續、高效進行 |
| 2 | 技術控制 | ×× | 解決施工中技術方面的難點及向分包交底施工中應控制的技術重點 |
| 3 | 質量控制 | ×× | 進行工程質量的預控和過程控制,組織工序驗收 |
| 4 | 安全文施 | ×× | 對施工安全、文明施工進行監督管理 |
②分包管理人員安排。
a.項目經理:××。
b.技術總負責人:××。
c.材料供應負責人:××。
d.現場施工員:××。
2)勞動力安排及培訓。為了高質量完成本工程防水施工,防水公司要保證提供充足的勞動力,在防水施工前再次進行上崗前培訓,加強其在規章制度、操作技術和安全文明施工等方面的水平。
(3)施工機具設備。機具設備計劃見表2。
表2 施工機具一覽表
| 名稱 | 單位 | 數量 | 主要用途 |
| 2.5L汽油噴燈 | 把 | 30 | 烘烤防水卷材 |
| 開刀 | 把 | 30 | 基層清理等 |
| 紅粉 | kg | 15 | 彈線 |
| 30m鋼尺 | 把 | 10 | 測量 |
| 掃帚 | 把 | 20 | 清掃 |
| 滅火器 | 具 | 20 | 防止發生火災 |
(4)施工物資準備。
1)按質按量確保本工程所需的防水卷材,施工所需的輔助材料隨同主材一同進場。
2)進場物資驗收。所有材料必須兩證齊全方可進入現場,對進入工地的防水材料,嚴格按要求抽樣檢測,經檢驗合格后方可使用,否則必須退場,堅決杜絕不合格產品用于本工程。進場材料的外觀檢測按每批進場數量:100卷以內2組、100~499卷3組、500~999卷4組、1000卷以上5組進行取樣;物理性能檢驗取樣按每批1000卷為一批,不足1000卷的按一批計算,并應按30%見證取樣。
4.主要施工方法
(1)基礎底板防水施工。
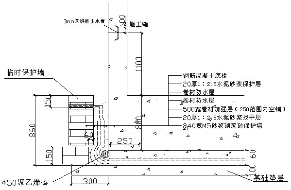
1)防水保護磚墻施工。在基礎墊層施工完畢彈出基礎外墻邊線,經驗收合格后砌永久性保護墻860mm高,即砌筑至底板頂往下150mm標高處,臨時性保護墻150mm高,臨時保護墻采用石灰砂漿砌筑,內表面采用水泥砂漿做找平層。卷材與臨時保護墻接觸部分臨時粘附。基礎底板防水保護磚墻(圖1)。

圖1 基礎底板防水保護磚墻施工
2)底板防水施工。
①本工程底板墊層混凝土平面部分和永久性保護墻立面部分的防水卷材采用熱熔滿粘法施工。
②施工流程。清理基層經驗收合格→涂刷基層處理劑經驗收合格→卷材附加層鋪貼經驗收合格→彈線空鋪第一層SBS卷材→熱熔封邊第一層卷材→驗收第一層卷材→彈線鋪貼第二層SBS卷材→熱熔封邊第二層卷材→驗收交接→做保護層。
③墊層施工一次成活壓平,待墊層表面及防水保護墻面干燥符合要求后對基層進行檢查處理。基層表面采用鏟刀和笤帚將突出物砂漿疙瘩等異物清除,并將塵土雜物清理干凈,如有油污跡等要用有機溶劑、鋼絲刷等清除,如有滲漏水情況,應對滲漏部位鑿U形槽用速凝材料堵漏后,方可做基層處理;對所有陰陽角抹成圓弧,圓弧半徑要求R≥50mm。干燥率小于9%。基層表面要求干燥、干凈、平整、堅固,無起砂、起皮掉灰現象。
④涂刷基層處理劑。在陰陽角、積水坑、排水井周圍及其它作業面涂刷基層處理劑,涂刷要均勻,無漏刷斑點等現象存在,冷油涂刷后不可進人踩動,要晾干4小時后方可進入下一道工序。
⑤附加層施工。對所有陰陽角及凸出基層部分結構做卷材附加層,附加層寬度500mm。附加層采用熱熔滿粘法施工。
⑥大面鋪貼。
a.大面鋪貼前在找平層表面彈線,按線鋪卷材;底板墊層混凝土平面部位第一層防水卷材采用空鋪,熱熔封邊,卷材與卷材間必須粘接緊密;卷材接縫封嚴,鋪貼時避免過火烤壞卷材。
b.卷材長短向搭接均不小于100mm,同一層相鄰兩幅卷材鋪貼時,其搭接邊應錯開1500mm以上,且上、下兩層卷材禁止互相垂直鋪貼。
c.上、下兩層卷材鋪貼應錯縫,錯縫寬度大于1/3幅寬。卷材與卷材之間必須粘接緊密。
d.在立面與平面轉角處,卷材的接縫應留在平面上,距立面不小于600mm。
⑦第二層防水施工完畢驗收合格后及時交接做防水保護層,保護層采用5cm厚C20細石混凝土。
⑧基礎底板及底板后澆帶處防水做法(圖2)。后澆帶做成平直縫,采用遇水膨脹止水條,沿后澆帶居中布置;加強層做法參照88J6-1圖集P73,5節點做法,加強筋ф12mm橫縱@150mm。

圖2 后澆帶防水構造
(2)基礎外墻立面防水施工。
1)本部位防水卷材采用熱熔滿粘法施工。由于肥槽較深,采取分步(每步4.5m左右)進行即先施工第一步防水然后回填土再施工第二步防水及回填至首層地面標高,肥槽周圍分段進行,確保了防水隊與土建隊之間的配配合。
2)施工流程。臨時保護墻剔除清理、預留搭接卷材清理檢查、基層處理經驗收合格→涂刷基層處理劑經驗收合格→卷材附加層鋪貼經驗收合格→彈線鋪貼第一層SBS卷材、熱熔封邊→驗收第一層卷材→彈線鋪貼第二層SBS卷材、熱熔封邊→驗收交接→5mm聚乙烯泡沫塑料片材→120mm厚蒸壓灰砂磚→回填土。
3)對臨時保護墻剔除清理要到位,對預留搭接卷材進行檢查若有破損處先處理,預留錯縫搭接長度若由于破損不能滿足要求采用加150mm寬封口條的方法加強。
4)基層處理。要求基層無雜物、塵土或滯留砂漿。不平處用水泥膩子找平或打磨。用2m長直尺檢查,基層與直尺之間的最大空隙不應超過5mm;空隙僅允許平緩變化,且每m長度內不得多于一處。
5)基層處理完畢后,涂刷冷底子油基層處理劑,要求滿涂均勻無漏刷斑點等。涂刷完畢必須經4h以上達到要求后方可進行卷材施工。
6)對結構墻體轉角及其它陰陽角處做500mm寬卷材附加層。
7)鋪貼大面卷材要求層層滿粘。
8)基礎外墻及預留搭接處防水做法(圖3)。

圖3 基礎外墻及預留搭接處防水處理做法
9)基礎外墻水平施工縫防水做法(圖4),底板上外墻水平施工縫采用3mm厚200mm長兩側倒角寬度20mm的鋼板止水帶。做法參照采用88J6-1圖集P44,2節點做法;其余往上外墻水平施工縫采用20mm×30mm膩子型膨脹止水條。

圖4 施工縫防水構造
10)外墻后澆帶部位做法參照選用88J6-1圖集P71,3節點做法,,防水涂料加強層改為SBSⅡ型3mm一道。
11)基礎外墻穿墻管道防水做法(圖5、6)。

圖5 固定式穿墻管防水構造

圖6 套管式穿墻管防水構造
12)基礎外墻防水收頭做法詳建筑圖。
(3)-0.60m以下地下室頂板防水施工。
1)本部位防水卷材采用熱熔滿粘法施工。
2)施工流程。頂板找平層做完及基層清理經驗收合格→涂刷基層處理劑經驗收合格→細部卷材附加層鋪貼經驗收合格→彈線鋪貼第一層SBS卷材、熱熔封邊→驗收第一層卷材→彈線鋪貼第二層SBS卷材、熱熔封邊→驗收交接→保護層施工
3)涂刷基層處理劑。在已經處理好的基層上涂刷基層處理劑,用長柄滾刷涂刷,要求涂刷均勻,不得漏刷或露底。基層處理劑涂刷完畢須經4h以上達到干燥程度方可施行熱熔施工。
4)細部附加層增強處理。對陰陽角、管道根部以及變形縫等部位均做增強處理。先按細部形狀將卷材剪好,不要加熱在細部貼一下,視尺寸、形狀合適后,再將卷材的底面(有熱熔膠的一面)用汽油噴燈烘烤,待其底面呈熔融狀態即可立即粘貼在已涂刷一道基層處理劑的基層上,附加層要求無空鼓,粘接率為100%,并壓實鋪牢。
5)彈粉線。在已處理好并干燥的基層表面,按照所選卷材的寬度,留出搭接縫尺寸,將鋪貼卷材的基準線彈好,以便按此基準線進行卷材鋪貼施工。
6)熱熔鋪貼卷材。大面積滿粘以“滾鋪法”施工,先鋪粘大面,后粘接搭接縫,滾鋪法施工要求如下:
①熔粘端部卷材。將整卷卷材置于鋪貼起始端,對準基層上已彈好的粉線滾展卷材約1m。由一人站在卷材正面將這1m卷材拉起,另一人站在卷材底面,手持汽油噴燈,待卷材底面膠呈熔融狀即進行粘鋪。將端部卷材鋪牢壓實。
②滾粘大面卷材。起始端卷材粘牢后,持火焰噴燈的人應站在滾鋪前方對著待鋪的整卷卷材,使噴燈距卷材及基層加熱處0.3~0.5m施行往復移動烘烤(不得將火焰停留在一處火燒烤時間過長,否則易產生胎基外露或胎體與改性瀝青基料瞬間分離),至卷材底面膠層呈黑色光澤并拌有微泡(不得出現大量大泡)即及時推滾卷材進行粘鋪,后隨一人施行排氣壓實工序。
③卷材搭接縫施工。搭接縫及收頭的卷材必須100%烘烤,粘鋪時必須有熔融瀝青從邊端擠出,用刮刀將擠出的熱熔膠刮平,沿邊端封嚴。頂板防水卷材與地下室側墻的防水卷材在結構頂板底面下20㎝處熱熔搭接。
7)卷材長短向搭接均不小于100mm,同一層相鄰兩幅卷材鋪貼時,其搭接邊應錯開1500mm以上,且上、下兩層卷材禁止互相垂直鋪貼;上、下兩層卷材鋪貼應錯縫,錯縫寬度大于1/3幅寬。卷材與卷材之間必須粘接緊密。
8)地下室頂板防水做法詳建筑圖。
(4)防水混凝土施工。
1)技術要求。詳見底板混凝土施工方案。
2)施工要求。
①防水混凝土拌和物在運輸后如出現離析,必須進行二次攪拌。當坍落度損失后不能滿足施工要求時,應加入原水灰比的水泥漿或二次摻加減水劑進行攪拌,嚴禁直接加水。
②防水混凝土必須使用高頻振搗棒進行振搗,澆筑時應使用標尺桿控制分層厚度不大于450mm,間距10m~15m一根,也可在模板內側做標記配合標尺桿來控制分層澆筑高度;振搗時振搗棒要下插到下一層混凝土50mm左右,以保證兩層混凝土結合密實。振搗時間宜為10~30s,以混凝土表面泛出浮漿并且不再冒出氣泡為準,必須避免漏振、欠振和超振。
③防水混凝土在澆筑底板時須一次澆筑完成,層間留置水平及豎向施工縫,使用BW膨脹止水條。施工縫澆筑前應填5~10cm厚的與混凝土同配合比的減石子砂漿詳細構造見圖7。

圖7 外墻與頂板施工縫留置圖
④地下室外墻穿大模板螺栓需要具備止水功能,施工中使用特制穿墻螺栓,埋在墻內段滿焊止水鋼板,拆外墻模板時將套筒及外側拉桿拆除后周轉使用。如下圖所示。外墻螺栓套帽拆除后使用嵌縫材料和聚合物砂漿將外墻內外側凹陷部位補平。詳細構造見圖8、9。

圖8 地下室外墻穿墻螺栓構造示意

圖9 地下室外墻穿墻螺栓防水做法
⑤水平施工縫澆筑混凝土前,應將其表面浮漿和雜物清除,先鋪鄭州賽諾建材公司的YYP凈漿,再鋪30~50mm厚的1︰1水泥砂漿,并及時澆灌混凝土。垂直施工縫澆灌混凝土前,應將其表面清理干凈,并涂刷水泥漿,及時澆灌混凝土。
⑥止水條性能符合要求,必須具有緩脹性能,其7d的膨脹率不應大于最終膨脹率的60%。且止水條應牢固地固定在墻體中部以避免在混凝土澆筑過程中發生位移。
5.質量保證措施
(1)要求防水公司對本防水工程嚴格按照國家重要建筑一級工程質量標準要求精心組織施工,確保總防水工程質量達到優良。
(2)嚴格按照國家地方相關規程及本防水施工方案組織施工,不得隨意更改材料及做法等,若需調整必須按報批制度執行。
(3)針對不同部位對操作工人做好詳細的技術交底。
(4)對進入工地的材料,嚴格按要求抽檢,經復試合格及時上報監理經審批后方可用于工程,嚴禁不合格產品用本工程。
(5)精心組織現場施工,每一道工序嚴格把關,達到要求經驗收認可方可進行下一道工序。
(6)選擇具有防水施工經驗的作業人員。對進入工地的防水施工人員由雨虹公司再次進行崗前技術紀律培訓,所有施工人員一律持證上崗。
(7)完善施工組織分級制度,現場施工員必須跟班作業;嚴格執行三檢制。
(8)××公司所有進入工地的管理及施工人員必須無條件遵守總包的相關規章制度,服從總包的統一管理。
(9)強化驗收。
1)基層驗收。進行防水施工之前對基層進行驗收,驗收由總包組織,業主、監理、防水分承包商參加,進行現場交接并經共同簽證認可;無交接記錄,防水隊伍不得進行防水施工。
2)防水層施工,按照涂刷基層處理劑→卷材附加層鋪貼→鋪貼第一層SBS卷材→鋪貼第二層SBS卷材的工序分項驗收;在前一工序未驗收并簽證之前,不得進行下一工序的施工;由于底板防水面積大,工期緊,防水分項的驗收簽證分區分段進行,施工過程中防水隊伍應密切配合業主、監理和總包方的驗收工作。
3)工程驗收文件。
①材料方面。進場材料的質量合格證明、進場檢查記錄、復試報告單及物資報驗單。
②工程方面。隱檢記錄、分項工程質量檢驗評定表及分部/分項工程報驗單。
③防水工程的使用、管理維護說明書,防水工程的保證期證件。
6.成品保護措施
(1)卷材防水層施工完畢后由業主、監理、總包及防水隊伍共同驗收并交給土建隊及時進行保護層施工。盡量減少在裸露防水層上面踩踏。
(2)卷材防水層交接后,防水隊伍還應派人進行維護,以防止在保護層的施工當中損壞防水層。
(3)在保護層的施工中,操作人員均穿軟底鞋,嚴禁穿帶釘子鞋進入現場,以免損壞防水層;如發現卷材有破洞應及時修復。
(4)平面防水層施工保護層用的手推車要求輪胎充足氣,鐵腳用布包裹,防止軋傷防水層。
(5)基礎底板外側永久性保護墻上卷材防水層,及時抹水泥砂漿保護層。
(6)基礎外墻立面防水層施工完后及時貼聚苯板防護并回填土,在土方下料及夯實過程中避免碰壞防水層,若有損壞及時由防水隊伍修補。
7.施工管理措施
(1)安全消防及文明施工。
1)貫徹執行國家關于施工安全生產管理方面的方針、政策、規程、制度、條例,建立安全生產責任制。
2)做好新工人入場教育、調動工作崗位工人的上崗安全教育。嚴抓崗前培訓,認真仔細學習并嚴格遵守甲方及總包施工現場各項管理規章制度。
3)進入施工現場人員必須佩帶安全帽,非施工人員不準進入施工現場,現場禁止吸煙,施工現場內嚴禁隨地大小便。
4)在外墻防水施工時必須先按要求搭好架子及做好防護方可施工。
5)簽定消防責任協議書。執行用火申請審批制度。
6)嚴格按照防水操作規程所規定的程序、要點和要求進行操作。
7)抓硬件配套管理,作業面配備相關安全防火設施(如滅火器等),任何人不準挪用。
8)切實做到工完料凈場清,及時清理現場,保持施工工地整潔。
9)原材料分規格碼放整齊,做到一頭齊、一條線、不超高、不混放。
(2)工期保證措施。在施工中將統一協調,合理穿插,精心部署。各個施工班組要緊密配合,并根據土建進度計劃、現場施工條件組織好材料、勞動力進場,充分利用平面、空間和時間組織交叉作業,分階段驗收以便及時插入保護層施工,做到均衡施工,確保總工期的實現。
當前在地下工程的混凝土,磚結構構筑物,回填后,經常會因各種原因發生滲漏,處理方法也多種多樣,但對于混凝土的毛細孔或微細裂紋的滲水和出汗問題,一直是個工程難題,于是就有了“不怕漏,就怕滲的”說法。尤其是遇到磚結構滲水,更是難以耐久性解決。
建筑物回填后,發生了滲漏,嚴重的可以用注漿或速凝堵漏材料進行堵漏,但如果遇到滲水和出汗的問題,注漿和速凝的堵漏材料的優勢就受到了限制。市場急需要一種能適合內部施工的,方法簡單的,耐久性好的技術來解決目前工程上遇到的難題。
鄭州賽諾建材,專業工程水密封技術20年,電話:400-0371-713.m.zdweidun.com.cn








