某廣場工程地下室防水施工方案
某廣場工程地下室防水施工方案
1.工程概況
××廣場工程建筑面積58829.72m2,地上30層,地下2層、局部3層。結構類型為框架-剪力墻結構,基礎形式:主樓部分為CFG樁+有梁式筏板基礎厚1.2m、附樓部分為抗浮樁+有梁式筏板基礎厚0.65m。建筑物持力層為第三層土+粘土,天然地基承載力為120kPa,地下水位勘察時為-2.6~-1.9m、近年地下最高水位為-1.5m左右。本工程地下室防水工程采用結構自防水和柔性防水相結合。防水等級為一級。地下結構自防水采用添加CH-UEA2型混凝土高性能流化膨脹劑,抗滲混凝土抗滲等級為S8。柔性防水采用防水卷材,防水卷材底板為單層4mm厚BAC自粘雙面防水卷材,抗浮樁處另加1.5mm厚聚氨酯防水涂料、地下室外墻及頂板為4mm厚BAC自粘雙面防水卷材。
2.施工部署
(1)施工準備。
1)施工手續及證件。所有防水施工人員必須具備《職業技能崗位證書》、《市安全資格上崗證》及《暫住證》等準許施工證件且證件在有效期內。
2)技術準備。
①圖紙及相應規范。施工前,認真查閱圖紙及相應規范,掌握防水材料的性能和技術指標及施工工藝,特別是防水收頭及陰陽角等特殊部位的處理,作到施工中重點突出。
②技術交底。防水工程施工前,施工負責人應向班組進行技術交底,內容應包括:施工部位、施工順序、施工工藝、構造層次、節點設防方法、增強部位及做法,工程質量標準,保證質量的技術措施,成品保護措施和安全注意事項等。
3)材料準備。BAC自粘防水層4mm厚;1.5mm厚聚氨酯防水涂料。
4)材料復試要求。
①BAC防水卷材。進場后按規定抽樣復試,同一品種、牌號和規格的卷材100卷抽取2卷,100~499卷抽取3卷,500~1000卷抽取4卷,大于1000卷抽5卷。將抽樣的卷材開卷進行規格和外觀質量檢驗。在外觀質量檢驗合格中任取一卷作物理性能檢驗。不合格時加倍取樣復試,全部達到標準規定為合格,復檢時有一項指標不合格,該產品外觀質量為不合格產品。
②聚氨酯防水涂料。同一規格、同一品種、同一廠家的每10t為一批,不足10t也按一批取2kg。
5)材料性能。
①水泥漿作粘結劑,“皮膚式”粘結效果,一層防水即得剛柔結合兩道防線。
②卷材柔軟,陰陽角施工容易到位,操作簡單方便。
③延伸性能好,可抵御基層一般變形、裂縫等不利現象;
④壽命長,耐候性能優良。能適應炎熱和寒冷地區的氣候變化。
⑤粘結牢固后不易受到破壞,小破損能自愈,大破損修補極其簡易。
⑥安全環保,對環境無污染。
6)材料的貯存、保管要求。
①卷材、密封膏等應在干燥、通風的環境下儲存,防止日曬雨淋,且應配備必要的消防設施。
②卷材應平放,不得傾斜或交叉橫壓,堆放高度不應超過平放5層。
③卷材、密封膏等在運輸及儲存過程中均應遠離火源,儲存時間均為12個月。
7)機具準備。小平鏟、料桶、掃帚、干粉滅火器、鋼絲刷、長把滾刷、裁剪刀、盒尺、鐵抹子、手推車、木拍子。
(2)作業條件。
1)地下水位高,必須先做好排降水工作,將地下水位降低到防水結構地板以下500mm,并保持到防水層施工完成為止。
2)基層必須堅固、不起砂、不起皮、表面清潔平整,用2m直尺檢查,最大空隙不應大于5mm,不得有空鼓、開裂及起砂、脫皮等缺陷,空隙只允許平緩變化。陰角處應做成半徑為20mm的圓角;陽角處應做成半徑為50mm的圓角。
3)卷材嚴禁在下大雨、五級風及其以上時不得施工。
(3)質量管理小組。小組負責防水工程整個過程質量活動的控制、監督、改進。對施工圖紙、技術資料、項目質量文件、記錄的控制和管理負責。對重要部位標志質量控制要點,實行重點控制;及時檢驗工序活動效果的質量。按要求實行“三檢”制度,參與隱蔽工程和分項工程的質量驗收。
(4)勞動力計劃。地下室防水工程由專業隊伍施工,其技術負責人及班組長、工人必須經過專業培訓,持有防水施工人員上崗證。勞動力計劃見表1。
表1 勞動力計劃
| 序號 | 工種名稱 | 需要人數 | 進場時間 | 技術等級要求 |
| 1 | 防水工 | 20 | ××年×月×日 | 持證上崗 |
| 2 | 臨工 | 5 | ××年×月×日 |
(5)施工進度計劃。在墊層施工完畢后,地下室防水施工計劃××年×月×日開始,底板防水層施工周期為11d;地下室外墻防水層在外墻拆模30d后進行施工,施工周期為25d。計劃于××年×月×日結束。
3.施工工藝
地下室卷材防水層為外防外貼法。底板采用4mm厚BAC自粘雙面防水卷材、抗浮樁周邊300mm區域增設一道1.5mm厚聚氨酯防水涂料,外墻及頂板為4mm厚BAC自粘雙面防水卷材,粘貼方法均為滿粘。
(1)施工流程。清理基層→抹水泥砂漿10~20mm→揭掉BAC卷材下表面的PET隔離膜→鋪BAC卷材→拍打卷材表面、提漿→晾放→附加條搭接或涂刮密封膠→收口處理。
(2)底板BAC防水層的施工。
1)基層處理。清除混凝土基面的灰塵、雜物。干燥的基面預先灑水濕潤。
2)粘貼方法。
①抹水泥砂漿(也可采用水泥漿)。將水泥和粗砂按1︰2的配比進行機械攪拌。水泥砂漿厚度一般為5~10mm,配料時也可以加入適量聚合物乳液。
②揭掉BAC卷材下表面的PET隔離膜。將BAC卷材鋪貼在水泥砂漿上。卷材與相鄰卷材之間為平行對接,無需上下搭接。
③拍打。用木抹子或橡膠伴拍打卷材上表面提漿,排出卷材下表面的空氣,使卷材與水泥砂漿緊密粘結。
④晾放。晾放24~48h(具體時間視環境溫度而定),一般情況下溫度愈高所需時間愈短。
⑤搭接口密封。用附加密封搭接條密封,附加密封條寬度為150mm。若搭接部位被污染,需先清理。
⑥垂直面施工。平面搭接部位收口后,即可進行垂直面施工。先涂刮貼必定配套密封膏,厚度為1mm左右。晾放24h后粘貼BAC卷材,立面不高可用水泥砂漿粘貼。
⑦收口。卷材上口邊緣用專用鋁合金壓條固定,收口處用貼必定專用密封膏密封。
⑧細部附加層增強處理。附加層材料與底板防水材料相同,附加層在轉角兩側各150mm。方法是先按細部形狀將卷材剪好,然后采用垂直面施工方法施工。陰陽角做法如圖1。

圖1 陰陽角做法示意
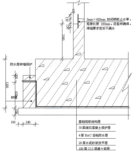
有防水要求的施工縫主要指地下室外墻上留置的施工縫。地下室外墻上留置一條施工縫,留置在底板面起300mm處,根據設計圖紙,在施工縫中間沿結構周圈設置一條450mm×4mm封閉鋼板止水帶。止水帶鋼板兩段搭接長度100mm,沿豎向滿焊,焊縫不得有氣孔、夾焊現象、保證密實不漏水,鋼板止水帶在墻中每隔2m用ф25鋼筋焊接支架,固定牢固,并且保證位置準確。所有后澆帶處均增設一道防水卷材施工縫處設4mm厚BAC附加防水層,止水帶安裝見圖2、3。

圖2 主樓筏基底板防水層做法

圖3 裙樓、車庫筏基底板防水層做法
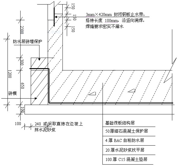
鋪貼平面與立面相連的卷材應由下向上進行,使卷材緊貼陰陽角,不得有空鼓現象,注意卷材不要走偏。立面與平面轉角處卷材必須留在平面上,距立面不得小于600mm,立面卷材收頭端部應裁齊。卷材翻到保護墻頂水平出墻550mm,卷材上鋪材料布將翻出保護墻的卷材進行保護,在材料布上砌筑紅磚墻200mm高。見圖4、5。

圖4 主樓筏基側面防水層做法

圖5 裙樓、車庫筏基側面防水層做法
⑨粘貼搭接縫。卷材搭接縫及收頭的處理,是防水層密封質量的關鍵。
3)檢查驗收。卷材鋪貼完,要進行全面的檢查,發現問題及時修補,清理工作現場,驗收合格后,辦理隱檢手續,交項目部。
4)特殊部位的處理。
①集水坑的防水層,根據集水坑的形狀、深度、坡度來確定卷材的鋪貼順序,橫、豎接縫不能重縫鋪貼,陰陽角鋪貼平緩,裁剪4mm厚500mm寬的BAC卷材粘貼加強;
②后澆帶部位。
a.底板后澆帶加強(圖6)。后澆帶部位每邊加1000mm附加4mm厚BAC卷材防水層加強,根據設計要求及規范要求放置中埋式止水帶。

圖6 后澆帶、溫度縫后澆帶止水鋼板示意
b.外墻后澆帶加強。用一幅4mm厚的BAC卷材2000mm粘實加強,見圖7。

圖7 外墻后澆帶加強做法
③預留管道根處理:裁剪直徑大于300mm寬的4mm 厚BAC卷材圓形塊粘實加強。
5)保護層施工。按設計要求在底板防水層施工完畢現作一層隔離層然后作細石混凝土保護層50mm厚。在防水層上行走或用膠輪車運輸材料,應在其上鋪腳手板。
(3)抗浮樁周邊300mm區域聚氨酯防水層施工。
1)施工工藝流程。清掃基層→涂刷底膠→細部附加層→第一層涂膜→第二層涂膜→第三層涂膜和粘石渣。
①清掃基層。用鏟刀將粘在找平層上的灰皮除掉,用掃帚將塵土清掃干凈,特別要對抗浮樁上的灰漿清理干凈。
②涂刷底膠。將聚氨酯甲、乙兩組份和二甲苯按1∶1.5∶2的比例(重量比)配合攪拌均勻,即可使用。用滾動刷或油漆刷蘸底膠均勻地涂刷在基層表面,不得過薄也不得過厚,涂刷量以0.2kg/m2左右為宜。涂刷后應干燥4h以上,才能進行下道工序的操作。
③細部附加層。將聚氨酯涂膜防水材料按甲組份∶乙組份=1∶1.5的比例混合攪拌均勻,用油漆刷蘸涂料在鋼筋與混凝土樁及墊層之間的空隙處涂刷,不得漏刷(涂膜防水上做鋼筋50mm高)。
④第一層涂膜。將聚氨酯甲、乙兩組份和二甲苯按1∶l.5∶0.2的比例(重量比)配合后,倒入拌料桶中,用電動攪拌器攪拌均勻(約5min),用橡膠刮板或油漆刷刮涂一層涂料,厚度要均勻一致,刮涂量以0.8~1.0kg/m2為宜。
⑤第二層涂膜。第一層涂膜后,涂膜固化到不粘手時,按第一遍材料配比方法,進行第二遍涂膜操作,為使涂膜厚度均勻,刮涂方向必須與第一遍刮涂方向垂直,刮涂量與第一遍同。
⑥第三層涂膜。第二層涂膜固化后,仍按前兩遍的材料配比攪拌好涂膜材料,進行第三遍刮涂,刮涂量以0.4~0.5kg/m2為宜。
在操作過程中根據當天操作量配料,不得攪拌過多。如涂料粘度過大不便涂刮時,可加人少量二甲苯進行稀釋,加入量不得大于乙料的10%。如甲、乙料混合后固化過快,影響施工時,可加入少許磷酸或苯磺酚氯化緩凝劑,加入量不得大于甲料的0.5%;如涂膜固化太慢,可加入少許二月桂酸二丁基錫作促凝劑;但加入量不得大于甲料的0.3%。
涂膜防水做完,經檢查驗收合格后(總厚度1.5mm)立即施工防水保護層。
2)成品保護。涂膜防水層做完之后,要嚴格加以保護,在保護層未做之前,任何人員不得進入,以免損壞防水層。
3)應注意的質量問題。涂膜防水層空鼓、有氣泡:主要是基層清理不干凈,底膠涂刷不勻或者是由于找平層潮濕,含水率高于9%,涂刷之前未進行含水率試驗,造成空鼓,嚴重者造成大面積起鼓包。因此在涂刷防水層之前,必須將基層清理干凈,并做含水率試驗。
(4)立面防水層施工。
1)砌筑保護墻。
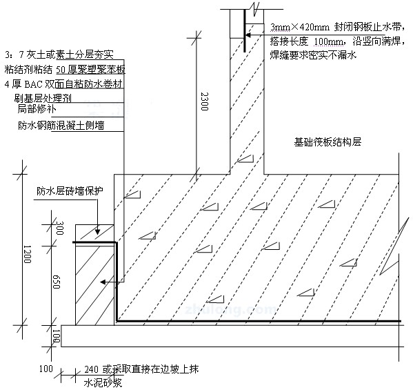
建筑物基礎底板墊層施工后,按施工圖放出保護墻位置線。按要求砌筑保護墻650mm高。為使墻面防水卷材接槎,以滿足底板防水與墻體防水的搭接寬度。
2)施工流程。結構穿墻螺桿孔切除,結構面清理→拆除根部臨時保護墻→防水墻面局部修補→BAC卷材施工→陰陽角、后澆帶卷材附加層→外墻立面卷材收頭處理→粘結劑粘貼50厚聚塑聚苯板保護層施工。
3)施工要點。
①結構穿墻螺桿切除及結構面清理:將穿墻螺桿切除并用防水砂漿填補抹灰,以保證不破壞防水層。對模板接縫處的水泥渣用磨光機磨平,對外墻表面水泥漿等雜物用鏟刀和鋼絲刷清理干凈,最后將混凝土表面灰塵掃凈。
②剪力墻表面是按照清水混凝土表面的要求施工,因此將水泥砂漿找平層這一道工序省去不做。
③將立面保護墻上的接茬部位卷材接頭剝出,清除卷材表面浮灰及污物,注意切勿將卷材損壞,如卷材局部有損壞,應及時進行修補。在剪力墻先涂刮貼必定配套密封膏,厚度為1mm左右。晾放24h后粘貼BAC卷材。具體BAC防水卷材鋪貼施工方法同底板防水層施工。
④特殊部位做法。主樓西側1軸處和東側17軸處,由于護坡樁的偏差,造成護坡樁進入筏基內,且該處筏基無法砌筑磚模,所采取把弧形護坡樁抹成斜面,原護坡重新用水泥砂漿抹灰壓光,抹灰前均要掛鋼絲網。
⑤細部做法施工。
a.對陰陽角、管根部均增加1層附加層以增強薄弱環節的抗滲能力。
b.在水平施工縫處增設500mm寬水平卷材加強層。
c.卷材收頭處須鋪貼250mm寬卷材加強層,并在其四周邊緣用密封膠封閉。
d.伸出外墻的管件需穿透防水層,在管道穿過結構處埋設防水套管,套管上附有法蘭盤,防水層粘貼在套管的法蘭盤里側,采用防水密封材料密封, 并用翼環將防水層夾緊,翼環外側附加4mm厚BAC防水卷材附加層,搭接寬度至少為100mm。
4)卷材防水層施工完畢經過驗收合格,然后立即粘結劑粘貼50mm厚擠塑聚苯板防水層保護層,預防防水層被破壞。
4.質量標準及保證措施
(1)質量標準。
1)主控項目。
①卷材防水層所用卷材及主要配套材料必須符合設計要求。
檢查方法:檢查出廠合格證、質量檢查報告和現場抽樣試驗報告。
②卷材防水及其轉角處及其轉角處、變形縫、穿墻管道等細部做法均須符合設計要求。
檢查方法:觀察檢查和檢查隱蔽工程驗收紀錄。
2)一般項目。
①卷材防水層的基層應牢固,基面應潔凈、平整,不得有空鼓、松動、起砂和脫皮現象;基層陰陽角處應做成圓弧形。
檢查方法:觀察檢查和檢查隱蔽工程驗收紀錄。
②卷材防水層的搭接縫應粘結牢固,密封嚴密,不得有皺折、翹邊和鼓泡等缺陷。
檢查方法:觀察檢查
③側墻卷材防水層的保護層磚墻應緊貼防水層。
檢查方法:觀察檢查
(2)質量驗收。
1)檢驗批的驗收由監理工程師或建設單位項目技術負責人組織項目專業質量檢查員等進行驗收。
每檢驗批按面積100m2檢查一處,每處不小于10m2,其不得小于3處。
2)驗收時檢驗各種原材料的實驗報告。
3)形成檢驗批質量驗收紀錄,按自治區主管部門規定的資料整理存檔。
(3)質量控制措施。
1)加強技術管理,認真貫徹國家規定、規范、操作規程及各項管理制度。
2)防水施工人員, 必須經過培訓,為專業施工人員 持證上崗。
3)應嚴格執行 “ 三檢” 和“ 一控”, 對質量問題要“ 三不放過”。“ 三檢”自檢、互檢、交接檢。“ 一控”自控準確率、一次驗收合格率。
4)加強原材料的管理工作,嚴格執行各種材料的檢驗制度。對進場的材料和設備必須認真檢驗, 并及時向監理方提供防水材料準用證、合格證、試驗報告和,設備報驗單。由防水施工隊長負責提供,技術員查驗整理。
5)材料分階段進場后,現場見證取樣復試合格后方可進行施工,由試驗員負責。
6)卷材平鋪完畢后,需經質檢員檢查附加層、搭接長度、搭接位置合格后,方可進行粘貼。由質量員負責。
7)鋪貼完畢后施工隊進行自檢,然后由項目質檢員和技術人員進行核驗,進行防水層隱檢記錄和質量評定。最后報監理工程師驗收。
8)認真作好工程技術資料, 及時準確完整收集和整理好各種資料,如合格證、試驗報告、質檢報告、隱蔽驗收記錄等,及時辦理各種簽證手續, 由資料員負責各種資料的收發。由技術負責人負責資料的內涵管理、整理和保管等外延管理。
(4)成品保護。
1)卷材防水層鋪貼完畢后,要及時做好保護層,防止結構施工碰損防水層;立面防水層施工完后,及時砌好防護墻。
2)卷材平面防水層施工,不得在防水層上放置材料及作為施工運輸車道。
3)在澆筑細石混凝土保護層以前的整個施工過程中,不允許穿帶釘子鞋的人員進入施工現場,以免損壞防水層。
4)澆筑細石混凝土保護層時,混凝土輸送工具為地泵,施工時不得用鐵鍬,混凝土鋪攤用木耙子。
(5)質量缺陷防治。
1)空鼓。基層清理不干凈,產生基層與卷材間窩氣、空鼓;鋪設時要把BAC防水卷材與砂漿之間結合牢固,并要拍實。
2)管根處粘貼不良。清理不干凈、裁剪卷材與根部形狀不符、壓邊不實造成粘貼不良;施工時清理要徹底干凈,注意操作,要將卷材壓實,不得有張嘴、翹邊、折皺等現象。
3)滲漏。轉角、管根、變形縫處不易操作而滲漏。施工時附加層要仔細操作;保護好接槎卷材,搭接要滿足寬度要求,保證特殊部位的施工質量。
5.安全、環保措施
(1)對施工人員進行安全教育,考試合格,進行安全技術交底后方可進行作業。
(2)參加操作人員應穿工作服,戴安全帽、口罩、手套、帆布鞋蓋等勞保用品;工作前,手臉及外漏皮膚應涂防護油膏等。
(3)施工現場應清除易燃物及易燃材料,并備有滅火器等消防器材。消防道路要暢通。
(4)施工使用的易燃物及易燃材料應存放在指定處所,并有防護措施及專人看管。
(6)施工完畢,剩余的卷材不得到處亂扔,特別是零碎的小塊卷材,要及時收集倒入固定的垃圾箱,保持施工環境的整潔,做到工完場清。加強環境保護。
當前在地下工程的混凝土,磚結構構筑物,回填后,經常會因各種原因發生滲漏,處理方法也多種多樣,但對于混凝土的毛細孔或微細裂紋的滲水和出汗問題,一直是個工程難題,于是就有了“不怕漏,就怕滲的”說法。尤其是遇到磚結構滲水,更是難以耐久性解決。
建筑物回填后,發生了滲漏,嚴重的可以用注漿或速凝堵漏材料進行堵漏,但如果遇到滲水和出汗的問題,注漿和速凝的堵漏材料的優勢就受到了限制。市場急需要一種能適合內部施工的,方法簡單的,耐久性好的技術來解決目前工程上遇到的難題。
鄭州賽諾建材,專業工程水密封技術20年,電話:
400-0371-713.m.zdweidun.com.cn








