某高層小區地下室防水工程施工方案
某高層小區地下室防水工程施工方案
1.工程概況
項目名稱:××小區5、6、8棟地下室防水工程。
施工內容:地下、剪力墻、種植層(頂板)防水施工。
地下部分防水為雙重設防,地下基礎底板、剪力墻和頂板、梁采用抗滲等級S6防水混凝土,并在底板、剪力墻、頂板做改性瀝青聚酯胎2.0mm厚自粘防水卷材。水平施工縫、豎向施工縫及底板的導墻施工縫均采用3mm厚鋼板止水帶。
2.施工部署
(1)施工進度計劃。根據現場情況和現有施工范圍,底板卷材防水施工包括地下室底板和車道底板,該部分卷材防水施工的計劃5月下旬(含基層處理和防水保護層施工)完工,剪力墻及頂板防水根據土建進度調整。
(2)勞動力計劃。防水工15人。
(3)施工機械設備。準備好工程防水所需的施工工具,如攪拌器及攪拌棒、大小容桶、批刮灰刀、潔凈水源、毛刷、滾刷、剪刀、小抹子、消防器材等等。地下鋼筋混凝土工程施工機械設備按施工組織設計的要求在五月上旬全部進場。
(4)材料存放。防水卷材及其輔料等均為易燃物,應存于現場專用封閉庫房,由項目部安全員定期檢查,庫房外門口應備有專用滅火器。
3.技術準備
(1)施工前施工技術人員要認真審閱圖紙:審閱結構圖與建筑圖、建筑圖與設備圖、設備圖與電氣圖是否交全;查找建筑圖和設備圖上采用的施工圖集,重點審查施工圖中防水的細部做法設計是否交待清楚;記錄施工圖中存在的問題或未交待清楚的問題,在圖紙會審時與設計和甲方解決施工圖中的問題。
(2)組織有關施工人員熟悉圖紙,針對工程特點學習GB50208-2002《地下防水工程質量驗收規范》、GB50300-2001《建筑工程施工質量驗收統一標準》、GB50108-2008《地下工程防水技術規范》、施工圖集等。編制防水卷材的材料、機具計劃,及時上報有關部門,寫好書面技術交底,并向班組以上人員進行技術交底。
4.材料介紹及施工工藝
(1)材料介紹
1)材料選用。“××”牌拍拍粘防水卷材(自粘•濕鋪)系統。
2)型號規格。2.0mm優質雙面自粘防水卷材。
3)材料特性。“××”牌自粘防水系統源自美國,是引進美國改性瀝青核心技術及系統防水的先進理念,通過企業自主創新、研發,更適合中國國情及氣侯環境特點,具有國際優良品質的防水產品。
(2)施工條件。在樁基完成底板墊層澆筑、梁側抹灰完畢后。
(3)施工步驟﹙采用濕鋪法﹚。
1)地下室地板基面處理:基面裂縫、凹坑處需修補抹平。清掃基面,做到無塵土、油污,然后灑水濕潤。
2)配制水泥漿:將水泥和水按適當比例調配,用電動攪拌器攪拌均勻待用。
3)在基面上均勻涂刮一層約2mm厚的水泥漿。
4)撕開卷材下表面的隔離膜 ,均勻涂抹水泥漿。
5)鋪貼卷材,長短邊搭接處搭邊約6cm。鋪貼完畢后用木板整平,提漿,排氣,使卷材與水泥漿貼緊。
6)檢查所有自粘卷材面有無撕裂,刺穿,氣泡情況并維修。
地下部分防水卷材采取全封閉鋪貼施工工藝,四周邊梁卷材鋪貼于梁底部,將邊梁部分整體包裹。
7)陰陽轉角部位防水處理如圖1~圖4所示。轉角部位,包括陽角、陰角及三面角,是防水層薄弱部位,應加強防水處理。轉角部位找平層應做成圓弧形。

圖1 陰角的第一層卷材鋪貼法

圖2 陰角附加層尺寸

圖3 陰角的第二層卷材鋪貼法


圖4 陽角卷材鋪貼法
1—轉折處卷材加固層;2—角部加固層;3—找平層;4—卷材
8)保護層施工。在防水施工完畢后,在防水卷材層倒置5cm厚C20細石混凝土保護層。
①保護層應滿足《地下防水工程質量驗收規范》規范的相關規定。
②防水層做完后,按設計要求做好保護層,一般平面為水泥砂漿或細石混凝土保護層;立面為砌筑保護墻或抹水泥砂漿保護層。在防水層上行走或用膠輪車運輸材料,應在其上鋪腳手板。做法示意圖如圖5所示。

圖5 防水層上澆筑混凝土通道示意
(4)地下室外墻防水施工。地下室外壁采用改性瀝青聚酯胎2.0mm厚自粘防水卷材。防水材料進場后按要求取樣復試,要求全部指標達到規范標準規定。
1)作業條件。
①已對外墻對拉螺桿孔處理完畢如圖6所示。

圖6 對拉螺桿
5—固定模板用螺栓;6—嵌縫材料;7—防水砂漿
②施工前審核圖紙,進行技術交底。
③施工人員證件齊全。
④其余同底板防水施工作業條件。
2)操作工藝。
①工藝流程。結構穿墻螺桿孔封堵,結構面清理→拆除根部臨時保護墻→自粘防水卷材→50mm厚聚苯板保護層→回填土施工
②施工要點。
a.結構穿墻螺桿孔封堵及結構面清理。首先,將固定模板用的對拉螺栓周邊混凝土鑿成直徑50mm、深25mm 的外大內小的洞,在根部將對拉螺栓拆除或割除,再將所留空洞澆水洗凈、濕潤后,用鄭州賽諾建材的YYA特種防水抗滲漿料塞實、抹平、壓光。對模板接縫處的水泥渣用磨光機磨平,對外墻表面水泥漿等雜物用鏟刀和鋼絲刷清理干凈,最后將混凝土表面灰塵掃凈。
b.小心拆除根部臨時保護墻,將防水層清理干凈。
c.復雜部位增強處理。對于陰陽角、管道根部以及變形縫等部位應做增強處理。
d.自粘防水卷材施工。同底板。
e.聚苯板及防水護墻施工。外墻防水施工完即施工防水層護墻,防水層護墻采用聚苯板隨裝隨填,防水層應粘結牢固,結合緊密,厚度均勻一致。
(5)細部處理
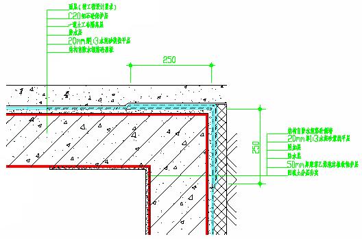
1)穿墻管部位防水做法(圖7)。
伸出外墻的管件需穿透防水層,在管道穿過結構處埋設套管,套管上附有法蘭盤,防水層粘貼在套管的法蘭盤上,搭接寬度至少100mm,并用夾板將防水層夾緊。防水層與管道埋設件連接處的作法示意如圖7所示。

圖7 穿墻管部位防水做法
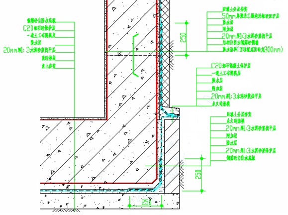
2)外墻立面防水做法如圖8所示。

圖8 外墻立面防水做法
3)平面與立面結構施工縫處,防水層接縫及增強處理如圖9所示。

圖9 平面、立面防水接縫做法
5.混凝土剛性防水層施工方案
本工程的基礎底板和外墻采用抗滲混凝土,摻加鄭州賽諾建材的YYM滲透性防水劑,其自身起一定的防水作用,對整個地下室防水的質量也有直接的影響。混凝土采用商品混凝土。
(1)原材料要求。
1)水泥。采用普通硅酸鹽水泥,水泥的強度等級不能低于32.5 級,水泥用量300kg/m3,具體依據試驗確定。
2)石子。石子最大粒徑不大于40mm,所含泥土不得呈塊狀或包裹石子表面,吸水率不大于1.5%。
3)砂。采用中砂。
4)水。所用水不得含有有害物質,為飲用水或潔凈的天然水。
5)防水混凝土的配合比通過試驗確定,其抗滲等級應比設計要求提高0.2MPa。含砂率必須在0.35~0.4之間,灰砂比必須在1:2~1:2.5之間,水灰比必須在0.55以下。混凝土的入模溫度不小于10℃。摻引氣劑或引氣型減水劑時,摻引氣劑或引氣型減水劑時,混凝土含氣量必須控制在3~6%。
6)計量允許偏差。混凝土含防水混凝土配料必須按質量比準確稱量,水泥、水、外加劑、摻合料允許偏1%,砂石允許偏差為2%。平板結構混凝土坍落度控制在14~16cm 之間,墻、柱等豎向結構混凝土的坍落度控制在16~18cm 之間。防水混凝土拌合物在運輸過程中如出現離析,必須進行二次攪拌,當坍落度有損失時,應加入原水灰比的水泥漿。
(2)施工要點。澆筑前先檢查模板是否穩固,模板拼縫嚴密不得漏漿。防水混凝土結構內部設置的各種鋼筋或綁扎絲,不得接觸模板,固定模板用的螺栓、拉片采用如下止水措施:
1)穿墻螺桿、拉片、套管等,均在其中間部位加焊止水環,止水環必須滿焊,環高為30mm。
2)防水混凝土施工必須采用機械振搗密實,振搗時間為20s,以混凝土開始泛漿和不冒氣泡為準,避免漏振、欠振和超振。墻體和底板嚴格分層振搗。
3)施工縫的留置、處理。對于防水墻體水平及豎向施工縫,均加鋼板止水板;底板不留施工縫,混凝土一次澆筑到外墻上返500mm 處。在施工縫上澆筑混凝土前,必須將施工縫處的混凝土表面鑿毛,清除浮粒和雜物,用高壓水沖洗干凈,保持濕潤,再涂刷一層1~2mm 厚的水泥凈漿(與澆筑混凝土的配比相同,除去石子,內摻10%SY-G混凝土高性能膨脹抗裂劑),隨后澆筑防水混凝土。
4)防水混凝土澆筑完成后,采取保溫措施,20h后,表面覆蓋塑料薄膜,再覆蓋一層草簾被,進行養護,養護時間為15d。
6.安全施工、環境保護措施
(1)由于卷材中某些組成材料和膠粘劑具有一定的毒性和易燃性。因此,在材料保管、運輸、施工過程中,要注意防火和預防職業中毒、燙傷事故發生。
(2)施工過程中作好基坑和地下結構的臨邊防護,防止出現墜落事故。
(3)施工中廢棄物質要及時清理,外運至指定地點,避免污染環境。
7.質量保障措施
配備一名現場施工員。負責施工技術上的指導,隨時檢查現場工人施工狀況,及時調整施工進度。保證按時、按質、按量完成工程。按以下標準進行施工現場的檢查驗收。
(1)卷材防水層所用卷材及其配套材料,必須符合設計要求。
卷材防水層及其轉角處、變形縫、穿墻管道等細部做法均須符合設計要求。
(2)卷材防水層的基層應牢固,基面應潔凈、平整,不得有空鼓、松動、起砂和脫皮現象;基層陰陽角處應做成圓弧形。
(3)卷材防水層的搭接縫應粘(焊)結牢固,密封嚴密,不得有皺折、翹邊和鼓泡等缺陷。
(4)側墻卷材防水層的保護層與防水層應粘結牢固,結合緊密、厚度均勻一致。
8.成品保護措施
(1)鋪好的卷材防水層上不得直接行走小車,如果運輸需要應墊腳手板。卷材鋪設時,小車支腿用麻包包扎,防止刮破卷材。
(2)外墻卷材防水施工后,要及時組織驗收,在保護層的施工過程中要特別強調成品保護,采取措施防止在后續施工時破壞防水卷材。
(3)卷材防水層的基礎底板保護層施工時,搭設混凝土泵管架的支腿下應用腳手板鋪墊,卷材上不得推小推車,防止小車支腿刮破防水卷材或小車在推拉過程中,車輪碾壓到石子刮破卷材。
(4)磚胎膜上口留置的外墻防水卷材接頭應用石灰砂漿砌兩層紅磚加以保護好。在鋼筋、模板和混凝土施工中不得碰撞此保護層。
(5)在防水保護層施工中應派專人在現場進行監督,一但發現防水層被破壞,應及時進行修補,杜絕隱患。
(6)卷材防水施工后,要及時組織驗收,加強對防水層甩茬的保護,在抹保護層的過程中要特別禁止野蠻施工,宜采用木制工具,穿軟平底鞋,采取覆蓋措施防止在后續施工時破壞防水卷材。
9.安全保障措施
現場配備一名安全員,及時發現現場安全隱患,嚴格按照《施工安全手冊》施工操作。
(1)現場嚴禁吸煙。
(2)施工前做好安全、消防方面的詳盡的技術交底。
(3)基礎施工必須架設護身欄,上下基坑要走梯子和馬道。
(4)防水材料為易燃物品,應因地制宜的采取相應的存放措施,并須配備足夠的滅火設備。施工中嚴格執行用火審批制度。
(5)施工時必須戴安全帽,防止高空墜物打擊。嚴禁向基坑內拋灑任何物品。
(6)為防止施工時有害氣體中毒,要保證防水施工范圍內有良好的通風條件,保證空氣流通。
(7)施工前應進行安全技術交底工作。
(8)患有皮膚病、支氣管病、結核病、眼病以及對瀝青、橡膠刺激過敏的人員,不得參加操作。
當前在地下工程的混凝土,磚結構構筑物,回填后,經常會因各種原因發生滲漏,處理方法也多種多樣,但對于混凝土的毛細孔或微細裂紋的滲水和出汗問題,一直是個工程難題,于是就有了“不怕漏,就怕滲的”說法。尤其是遇到磚結構滲水,更是難以耐久性解決。
建筑物回填后,發生了滲漏,嚴重的可以用注漿或速凝堵漏材料進行堵漏,但如果遇到滲水和出汗的問題,注漿和速凝的堵漏材料的優勢就受到了限制。市場急需要一種能適合內部施工的,方法簡單的,耐久性好的技術來解決目前工程上遇到的難題。
鄭州賽諾建材,專業工程水密封技術20年,電話:400-0371-713.m.zdweidun.com.cn








