北京某工程地下工程SBS卷材防水施工方案
北京某工程地下工程SBS卷材防水施工方案
1.工程概況
(1)建筑結構概括見表1。
表1 結構概況
| 序號 | 項 目 | 內 容 | |||
| 1 | 建筑功能 | 高檔國際寓所 | |||
| 2 | 建筑面積 | 總建筑面積 | 62781m2 | ||
| 地下建筑面積 | 6367m2 | 地上建筑面積 | 56414m2 | ||
| 3 | 建筑層數 | 地上21層,局部3層、8層,地下2層 | |||
| 4 | 建筑標高 | ±0.00標高 | 42.500m | 室內外高差 | 0.015m |
| 5 | 基坑深度 | 基底標高/m | -13.52/-11.82/-13.22 | 最大基坑底標高 | -13.52m |
| 6 | 結構形式 | 框架-核心筒 | |||
| 7 | 基礎形式 | 梁板式筏型基礎 | |||
| 8 | 水質情況 | 地下水對混凝土無侵蝕性 | |||
| 9 | 設防水位 | 39.00m | |||
| 10 | 防水等級 | 一級 | |||
(2)子分部工程概況。
本工程子分部工程——地下防水工程由防水混凝土、卷材防水層、構造防水、細部構造防水等幾部分組成,其具體做法見表2。
表2 分部工程及具體做法
| 序號 | 措施 | 內 容 |
| 1 | 結構 | 自防水 地下工程混凝土均采用預拌商品混凝土,基礎底板、地下室外墻均采用抗滲混凝土,抗滲等級:基礎地板、地下二層外墻C40S12 、地下一層外墻C40S8、人防頂板C40S8。 |
| 2 | 卷材防水 | 基礎底板和地下室外墻均采用雙層SBSⅡPY-PE3III+III防水卷材 |
| 3 | 構造防水 | 基槽500mm范圍內回填采用2:8灰土回填 |
| 4 | 細部構造防水 | 基礎底板后澆帶:外貼式止水帶、止水鋼板外墻后澆帶:外貼式止水帶(-11.050~-9.650)止水鋼板墻體水平施工縫:導墻用止水鋼板,其它用緩膨型遇水膨脹橡膠條 |
(3)工程特點及難點。
1)本工程基坑面積,平面尺寸為156.4m×35.6m,底板防水面積約為8418m2。外墻防水面積約為4187m2,總計防水面積約為12605m2。
2)本工程設計地下結構復雜,相鄰底板有高差,后澆帶多,轉角多,給施工的搭接帶來很大的困難。
3)用于本工程的防水材料種類多,其中緩膨型遇水膨脹橡膠條、鋼板止水帶、橡膠止水帶等均為新型防水材料。
4)底板防水施工時正處于雨季,基坑深度大,施工持續時間長,給防水施工帶來了較大的困難。
(4)主要工程量見表3。
表3 主要工程量
| 序號 | 項目 | 單位 | 數量 |
| 1 | 底板卷材防水 | m2 | 8418 |
| 2 | 地下室外墻卷材防水 | m2 | 4187 |
| 3 | 緩膨型遇水膨脹橡膠條 | m | 1200 |
| 4 | 橡膠止水帶 | m | 120 |
| 5 | 止水鋼板 | m | 750 |
| 6 | 宇巖YYP水泥基滲透結晶型防水涂料 | t | 2 |
| 7 | 穿墻止水螺栓 | 條 | 7460 |
| 8 | 穿墻套管 | 個 | 30 |
(5)質量目標:達到一級防水標準:不允許滲水,結構表面無濕漬。
(6)工期安排見表4。
表4 工期安排
| 工程項目 | 時間安排 |
| 基礎底板及導墻防水工程 | 2006.06.25—2006.09.11 |
| 地下室外墻防水工程 | 2006.11.15—2007.1.31 |
| 肥槽回填土 | 2006.11.15--2007.04.20 |
2.施工準備
(1)技術準備。
1)施工技術人員認真熟悉圖紙及洽商變更,編制詳細的施工方案,進行方案交底、技術交底,以便指導施工。
2)施工前工長依據施工圖紙及施工方案,對施工人員進行書面、口頭技術交底和安全交底。
3)砌筑砂漿采用砂漿攪拌機現場攪拌,采用磅稱進行計量。基礎墊層一次壓光找平,外墻基礎導墻防水找平層采用1:2.5水泥砂漿。
4)提前編制試驗計劃,做好防水原材料復試和見證工作。
5)技術部門應提前對預拌混凝土供應廠家進行技術交底,說明原材、配合比、外加劑、供應速度、初凝時間、坍落度等技術要求,并要求預拌混凝土供應時勻速進場不間斷。攪拌站提供的預拌混凝土技術資料:按長城杯金獎的要求,要求攪拌站提供全套資料,包括混凝土開盤鑒定、混凝土配合比申請單、混凝土運輸單、商品混凝土合格證、混凝土堿含量報告單、氯離子含量計算書等。
(2)現場準備。
1)現場做好消防準備工作,配備好消防滅火器材,以防卷材施工時發生火災事故。
2)準備一間防水卷材庫房及一間小型機具庫房,配備滅火器,并與易燃易爆物品隔離。
3)外墻防水施工前基坑上口用腳手板搭設防護棚,其下拉設安全網,對防水施工作業面上空進行防護,防止上部施工墜物傷人,同時基坑邊設專人旁站,隨時注意作業面上空情況。
4)基層含水率不宜大于9%。含水率的簡易檢驗方法,可將一塊1m×1m柔軟的卷材(如塑料薄膜),平坦地鋪在清掃干凈的找平層上,靜置3~4h,如覆蓋卷材的基層表面顏色仍與周圍覆蓋部位一樣(即無明顯水印),則可進行防水施工。
(3)材料準備。
材料部門在防水施工前制定備料計劃,并組織材料進場,其中卷材由分包單位負責提供,主要防水材料見表5。
表5 主要防水材料
| 序號 | 材料名稱 | 單位 | 數 量 | 進場日期 |
| 1 | 3mm聚酯胎SBSⅡ型防水卷材 | m2 | 12605 | 2006.07.1 |
| 2 | 冷底子油 | t | 7 | 2006.07.1 |
| 3 | 止水鋼板 | m | 750 | 2006.08.1 |
| 4 | 緩膨型遇水膨脹橡膠條 | m | 1500 | 2006.08.10 |
| 5 | 聚乙烯泡沫塑料片材厚5mm | m2 | 2000 | 2006.9.9 |
| 6 | 外墻止水螺栓 | 條 | 7460 | 2006.07.1 |
(4)材料檢驗。
1)每批防水材料進場前,材料部門應提前報驗,并提供材料質量證明文件材料、國家法定機構出具的檢測報告等。經過總包、監理、業主三方對其外觀進行對比檢查,材料符合要求方可進場,否則,按不合格品處理。
2)防水材料應提前集中進場,監理會同業主、總包、分包按規范要求共同抽樣送檢復試,復試結果由總包交業主、監理審查備案,如該批材料合格,即可進場使用,如檢測結果為不合格,應按相關物資檢驗程序立即退場,并做好書面記錄。
(5)防水材料的質量要求。
1)SBSⅡPY-PE3防水卷材外觀質量 、品種規格應符合現行國家標準:成品卷材卷緊卷齊,端面里進外出不得超過10mm;在4~50℃任一溫度下展開,在距卷芯1000mm長度外不應有10mm以上的裂紋或粘結;胎基應浸透,不應有未被浸漬的條紋;卷材表面須平整,不允許有孔洞、缺角和裂口;每卷接頭處不應超過1個,較短的一段不應少于1000mm,接頭應剪切整齊,并加長100mm;卷材應具有良好的耐水性、耐久性、耐腐蝕穿刺性、耐腐蝕性、耐菌性;卷材的主要物理性能應符合以下要求:縱橫向拉力≥800N/50mm,最大拉力時縱橫延伸率≥40%。低溫柔度-25℃時無裂縫,壓力0.3MPa時保持30min不透水。
2)冷底子油應是環保型的,使用前須做揮發物試驗。
(6)施工作業條件要求。
1)防水找平層須平整、牢固。
2)防水基層表面塵土、砂層等雜物清掃干凈,且不得有凹凸不平、松動空鼓、起砂、開裂等缺陷。
3)基層表面平整度。用2m長靠尺檢查,基層與直尺之間的最大空隙不超過5mm,且每m長度內不多于1處,空隙允許平緩變化。
4)基層表面的陰陽角處,均應做成圓弧形或鈍角,陰陽角圓弧半徑為50mm。
5)鋪貼卷材前應使基層表面干燥,滿粘法施工要求基層含水率小于9%,新作業面施工前先用簡易法測基層含水率,即用1m2的卷材覆蓋3h后察看凝結水情況,若無凝結水即可進行卷材的鋪貼。
3.施工方法
(1)基礎底板防水施工工藝流程。
墊層施工→基層清理→測試基層含水率→基層隱檢→彈線找規矩→涂刷基層處理劑→細部防水加強層→第一次層防水卷材鋪貼→第一層防水卷材收頭→第一層防水卷材接頭密封→第二層防水卷材鋪貼→第二層防水卷材收頭→第二層防水卷材接頭密封→防水層隱檢→防水保護層
(2)雙層SBSⅡPY-PE3防水卷材施工做法。
1)基礎底板外防水采用外防外貼法。基礎底板防水保護墻厚240mm,高度從底板上皮上返50mm,采用MU10頁巖磚。內側抹20mm厚1:2.5水泥砂漿找平層。卷材甩茬完成后在保護墻上干壓一皮磚壓頂。保護墻范圍內卷材使用點粘法,且其靠結構一側表面抹20mm厚1:2.5水泥砂漿,表面甩膠灰拉毛處理。各部位做法如圖1所示:

圖1 雙層SBSⅡPY-PE3防水卷材施工做法(單位:mm)
2)電梯機坑、集水坑部位防水做法如圖2。

圖2 電梯機坑、集水坑防水做法
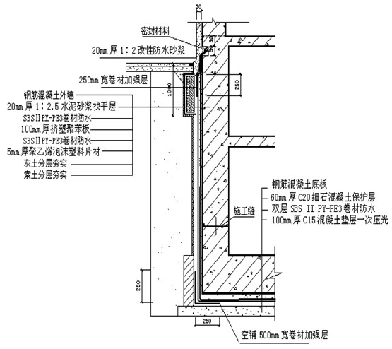
3)外墻防水采用外防外貼。防水保護層采用5mm厚聚乙烯泡沫塑料片材,防水卷材端部采用1.2mm厚鹵化丁基橡膠粘結膠帶進行收頭。具體做法如圖3。

圖3 外墻防水采用外防外貼做法(單位:mm)
4)鋪貼外墻卷材之前,應先將接茬部位的各層卷材揭開,并將其表面清理干凈,如卷材有局部損傷,應及時進行修補后方可繼續施工,卷材的接茬長度為100mm,兩層卷材應錯槎接縫,錯開距離不得小于350mm,上層卷材應蓋過下層卷材,見圖4。

圖4 卷材接茬的做法(單位:mm)
5)防水保護墻施工要點。
①砌筑磚砌體時,磚應提前1~2d澆水濕潤。砂漿配合比應采用重量比,并由試驗室確定,計量精度為:水泥為±2%,砂、摻合料鄭州賽諾建材的YYM為±5%。砂漿應隨拌隨用,水泥砂漿和水泥混合砂漿應分別在3h和4h內使用完畢,當施工期間最高氣溫超過30℃時,應分別在拌成后2h和3h內使用完畢。
②組砌方法一般采用一順一丁砌法。砌筑要里外咬槎,上下錯縫,采用“三一”砌磚法(即一鏟灰,一塊磚,一擠揉),嚴禁用水沖砂漿灌縫的方法。
③砌筑前,墊層表面應清掃干凈,灑水濕潤。砌墻要掛線,做到“上跟線,下跟棱,左右要對平”。
④水平灰縫厚度和豎向灰縫寬度一般為10mm,但不小于8mm,也不應大于12mm。豎向灰縫不得出現透明縫、瞎縫和假縫。砌磚施工臨時間斷處補砌時,必須將接槎表面清理干凈,澆水濕潤,并填實砂漿,保持灰縫平直。
6)雙層SBSⅡPY-PE3防水卷材施工要點。施工前將基層清理干凈,滿粘法施工保證含水率小于9%。陰陽角部位用1︰3的水泥砂漿抹成半徑不小于50mm的圓弧。在基層表面涂刷冷底子油,要涂刷均勻,不透底,冷底子油干燥后方可鋪貼卷材。
鋪貼SBSⅡPY-PE3卷材采用熱熔法施工,卷材與基層、兩層卷材之間全部采用滿粘法,防水卷材撞樁頭處要求嚴密,不得留空。先鋪貼陰陽角等部位的加強層,經質檢和監理檢查之后方可進行大面積鋪貼。先將地坑、后澆帶等處的防水卷材鋪貼完畢后再鋪大面,其上部卷材收頭處要留出不小于600mm與大面卷材進行搭接。先鋪平面,后鋪立面,交叉處應交叉搭接。
鋪貼卷材前應放線,以確保搭接長度和鋪貼順直。將防水卷材按鋪貼長度進行裁剪并卷好備用,操作時用一根φ30長1.5m的鐵管穿入已卷好的卷材的卷心,點燃汽油噴燈或專用火焰噴槍,加熱基層與卷材交接處,噴槍距加熱面保持300~500mm的距離,往返噴烤,不得將火焰停留在一處烘拷時間較長,卷材接縫與收頭處必須100%烘烤。觀察當卷材的瀝青剛剛熔化時,手扶管心兩端向前緩緩滾動鋪設,要求用力均勻,不窩氣,鋪粘時須有熔融瀝青從邊端擠出。
鋪貼防水卷材時,要自然鋪貼,絕不可猛力拉或將不均衡的拉力施于任何角度上。兩幅卷材長、短邊搭接均不少于100mm,上下兩層和相鄰兩幅卷材的接縫應錯開1/3~1/2幅寬,且兩層卷材不得相互垂直鋪貼, 在立面與平面的轉角處,卷材的接縫應留在平面上,距立面不應少于600mm。同一層相鄰兩幅卷材的橫向接縫應彼此錯開1500mm以上。
鋪貼時將貼有標簽的卷材表面朝上,粘貼卷材應展平壓實,卷材與基層、各層卷材間須粘結緊密,搭接縫須粘貼封嚴,無裂縫、損傷、氣泡、脫層或滑動。鋪貼后卷材應平整順直,搭接尺寸正確,不得有扭曲。
外墻防水卷材采取由下而上的施工順序,要求接頭處上層卷材下壓下層卷材的長度不得少于350mm。外墻防水卷材由下而上施工時,為防止卷材下滑脫落,采用木方在卷材上部臨時支頂的方法,并要求保護層和底部回填土及時跟上。
(3)細部構造防水做法。
1)基礎底板有沉降后澆帶,沉降后澆帶應待較高層主體結構封頂后才能澆筑,施工后澆帶應待其兩側混凝土施工完兩個月以上時澆筑,其做法見圖3-5。基礎底板施工后澆帶防水做法如圖5、6所示。

圖5 基礎底板結構沉降后澆帶做法(單位:mm)

圖6 基礎底板施工后澆帶防水做法
2)地下外墻后澆帶處-11.650~-9.750/-9.650采用10mm厚鋼板,鋼板外皮與外墻皮持平,-9.750/-9.650以上采用1000×600×60mm預制混凝土板做基層,混凝土板緊貼外墻,一邊伸出100mm,再做防水層,如圖7、8所示:

圖7 外墻沉降后澆帶做法(-11.650~-9.650/-9.750)(單位:mm)

圖8 外墻沉降后澆帶做法(-9.750/9.650以上)(單位:mm)
注:圖中5mm厚聚乙烯泡沫塑料片材防水保護層在-11.650m~-11.000m/-10.700m砌筑磚墻代替。
3)基礎底板導墻處水平施工縫采用止水鋼板進行防水,止水鋼板居中布置,埋入100mm,在施工縫以上露出100mm高,其凹面應朝向迎水面,轉角處止水鋼板應切45°角滿焊。其做法如圖9所示。

圖9 基礎底板導墻處水平施工縫防水做法(單位:mm)
4)地下室外墻穿墻套防水做法(鉛絲箍緊處涂刷防銹漆):

圖10 柔性穿墻管道迎水面防水做法(單位:mm)

圖11 柔性穿墻防水套管迎水面做法
5)地下外墻模板全部采用加焊70mm×70mm,5mm厚止水片的止水螺栓,拆模后,螺栓孔內抹鄭州賽諾的YYA特種抗滲漿料抹面找平。做法如圖12所示:

圖12 外墻止水螺栓做法
6)地下外墻豎向梯格筋模板頂棍加焊鋼板止水環(圖13),拆模后的處理方法參照上面5)的做法。

圖13 地下室外墻梯格筋
7)鋪貼轉角、陰陽角等部位,先用水泥砂漿進行倒圓角處理,用500mm寬單層卷材做附加層增強處理(圖14)。

圖14 地下室陽角處做法
(8)三面角處做法如圖15所示:

圖15 三面角處做法
1—轉折處油氈加固層;2—角部加固層;3—找平層;4—油氈
(4)季節性施工(略)
4.施工組織管理計劃(略)
5.質量驗收標準(略)
6.施工安全文明施工及環保措施(略)








